Grundstück 1 · Limberger Straße 4A · 03044 Cottbus (Schmellwitz)

Exposé: Gewerbegrundstück mit erteilter Baugenehmigung und MVZ-Planung.

Das Grundstück ist Teil des Minenergie Med Campus Cottbus.

Stand: April 2026

Kontakt

Bei weiteren Fragen oder für Zugriff auf unseren Data-Room, zögern Sie bitte nicht, uns zu kontaktieren.

Kontakt

Weitere Ansichten und Medien

Ergänzend zum Exposé. Abbildungen sind Planungs- und Darstellungsmittel.
Maßgeblich bleiben die genehmigten Zeichnungen und der Data-Room.
Stand: April 2026.

Perspektiven (Allplan)

Perspektive West-Süd   -   mit Haupteingang West und der straßenseitigen Zufahrt Südwest. 

Vogelperspektive West-Süd   -   mit Haupteingang West und der straßenseitigen Zufahrt Südwest.  

Perspektive Ost-Nord   -   mit Haupteingang Ost und der Fassade Nord.  

Vogelperspektive Ost-Nord   -   mit Haupteingang Ost und der Fassade Nord. 

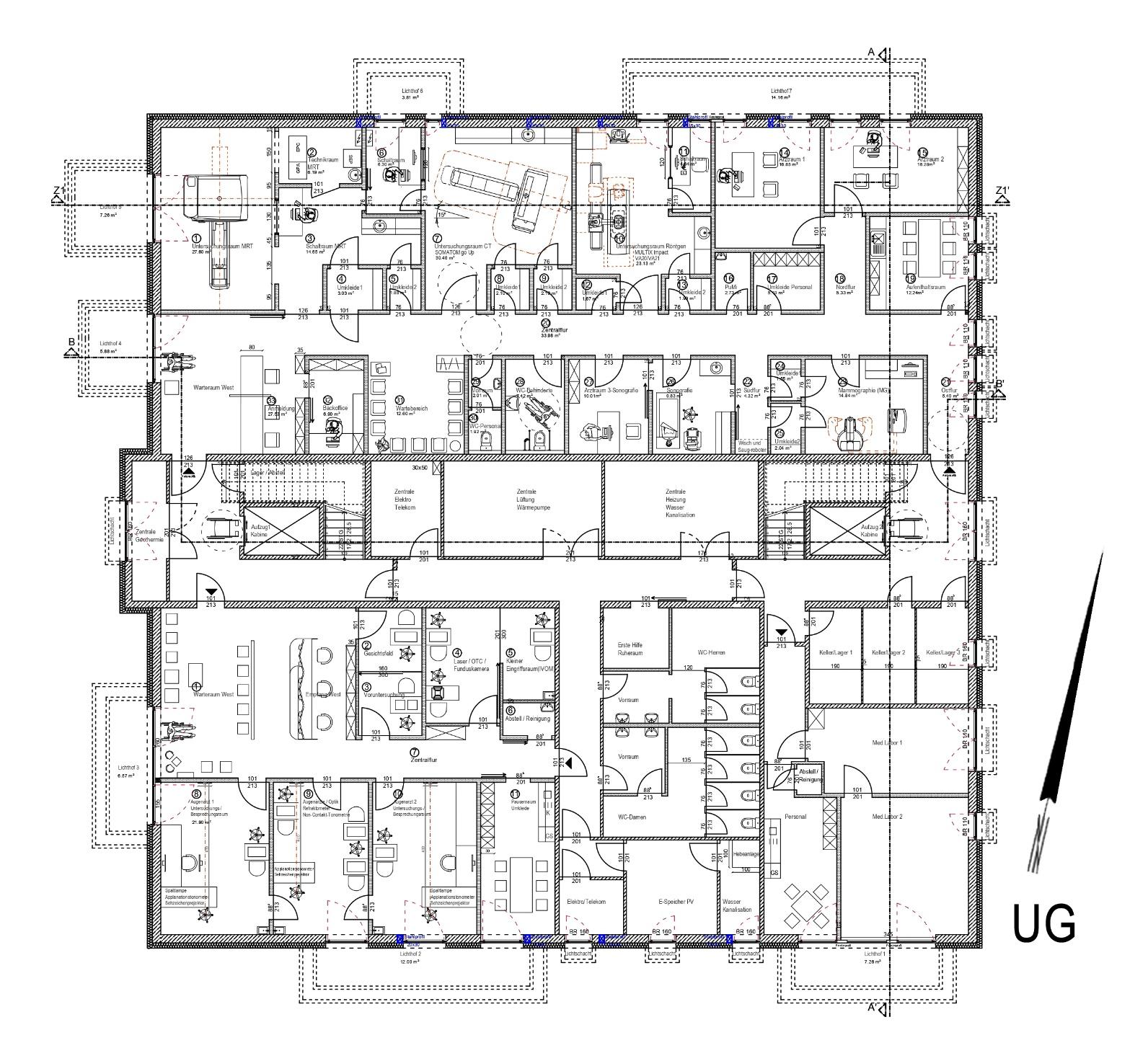
Grundrisse: MVZ, Projektiert

Planung, Erdgeschoss: Gastroenterologen (Nordwest), Kardiologen (Nordost), Allgemeinmedizin-Zentrum (Süd)

Planung, Obergeschoss: Zahnärzte-Zentrum (Nord), Internisten-Zentrum (Süd)

Planung, Untergeschoss: Radiologie-Zentrum (Nord), Augenärzte (Südwest), Medizinisches Labor (Südost)

Grundstück

Drohnenüberflug Baugrundstück in Blickrichtung Süd.

Liegenschaftskataster (Quelle: Stadt Cottbus, FB Geoinformation)

Lageplan, Ausschnitt
Bezirk Schmellwitz (Quelle: Wikipedia)

Kontakt

Bei weiteren Fragen oder für Zugriff auf unseren Data-Room, zögern Sie bitte nicht, uns zu kontaktieren.

Kontakt